Fraser Rise, VIC
Fraser Rise, Victoria, Australia
New 2 Participant Robust Home
Contribution
Assistance
Building Type
Design Category
$24672
SDA
House
Robust
Bedrooms
3
Bathrooms
3
Parks
3




Features
About
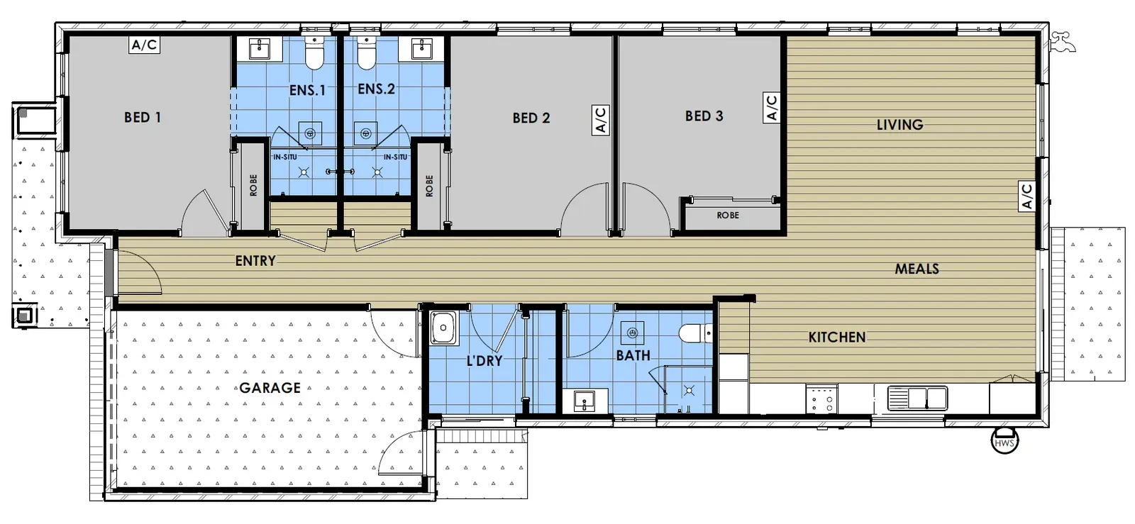
Beautifully Presented Robust House in Fraser Rise
Located in the highly sought-after suburb of Fraser Rise, This NDIS SDA property is being enrolled as a two participant robust home. It offers spacious living and an abundance of natural light.
With three bedrooms (Including OOA), three bathrooms, and a double garage. As you step inside, you'll be greeted by a bright and airy open-plan living area that flows seamlessly into the modern kitchen and dining area. The kitchen features stone benchtops, stainless steel appliances, and plenty of storage space. Other features of this fantastic property include ducted heating and evaporative cooling, a spacious laundry, and a low-maintenance backyard with a covered alfresco area.
Conveniently located close to parks, shopping centres, and public transport, this property is one that you donât want to miss out on.
Connected Living Solutions works closely with investors who want to make a difference to the lives of people with a disability and may consider different funding types for their properties. For example a participant with improved livability funding could be accepted in a robust designed house.
Location
Please note, to protect the privacy of our partners, the location shown is not accurate and should be used as a rough guide. The exact location will be revealed during the enquiry process.
Fraser Rise, Victoria, Australia
Overview
SDA Contribution
$24672
SDA Design
Robust
SDA Type
House
SDA Location
VIC – Melbourne – Western Melbourne
Support Provided
